$899,356 Pending
55358 bay oaks, shelby twp, MI 48315
| Map View | Aerial View | Street View |
Property Description
Beautiful split-level home under construction on a premium site in the new community of Preston Corners Manors in Shelby Township. The Grand Kirkwood -3,148 square feet, with 4 bedrooms, 3 1/2 baths, family room with coffered ceiling and fireplace, dining area, study, 19x10 loft, lanai, walk-out basement and 3-car carriage-style garage. Deluxe gourmet kitchen layout with Lafata upgraded cabinets with crown molding and soft-close doors and drawers. Pull-out shelves. Stainless Whirlpool cook top, combo wall oven/microwave, dishwasher, disposal and chimney hood vent. Quartz counters in kitchen and owner's bath. Granite snack bar island overhang. Spacious owner's suite with private bath with soaking tub. Two additional bedrooms. Ceiling fan prep and install in lanai. 42" fireplace in family room. Upgraded door hardware, plumbing fixtures, bath tile work both wall and floor. Mudhall bench with cubbies. Upgraded carpeting pad. Upgraded kitchen faucet and upgraded tile in all baths. Garage with 8-foot doors and opener with two remotes and one key pad. Ceiling fan prep in lanai. Three-piece rough plumbing in basement. High-efficiency furnace and water heater, central air, programmable thermostat with air cycler, humidifier with automatic thermostat, Tremco Watchdog basement waterproofing, Andersen 100 series windows with screens, Nelson energy seal, and ten-year transferable limited structural warranty. Photos are of a similar home--not this home. Equal Housing Opportunity.
General Information
City: shelby twp
Post Office: shelby twp
Schools: utica community schools
County: Macomb
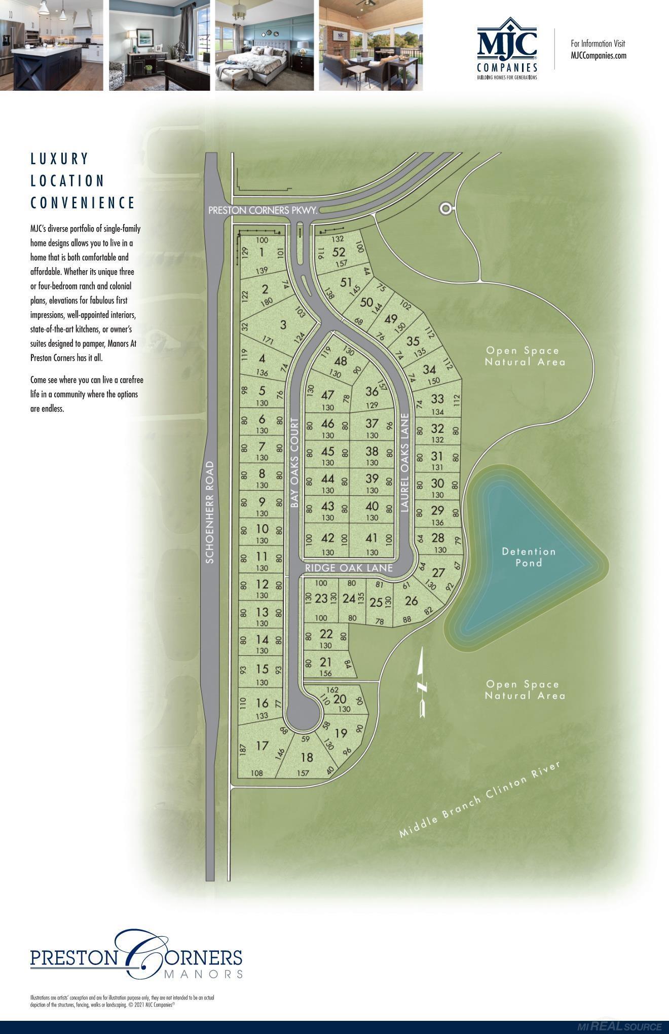
Subdivision: preston corners manors
Acres: 0.39
Lot Dimensions: 60x130x39x157x145
Bedrooms:4
Bathrooms:4 (3 full, 1 half)
House Size: 3,148 sq.ft.
Acreage: 0.39 est.
Year Built: 2025
Property Type: Single Family
Style: Split Level
Features & Room Sizes
Bedroom 1: 14x16
Bedroom 2 : 12x12
Bedroom 3: 17x12
Bedroom 4: 12x14
Family Room: 18x17
Kitchen: 14x13
Paved Road: Paved Street
Garage: 3
Garage Description: Attached Garage, Electric in Garage, Side Loading Garage, Direct Access
Exterior: Brick, Vinyl Siding
Bedroom 2 : 12x12
Bedroom 3: 17x12
Bedroom 4: 12x14
Family Room: 18x17
Kitchen: 14x13
Paved Road: Paved Street
Garage: 3
Garage Description: Attached Garage, Electric in Garage, Side Loading Garage, Direct Access
Exterior: Brick, Vinyl Siding
Fireplaces: Yes
Fireplace Description: FamRoom Fireplace
Basement: Yes
Basement Description: Full, Walk Out
Foundation : Basement
Appliances: Dishwasher, Disposal, Microwave, Range/Oven
Cooling: Central A/C
Heating: Forced Air
Fuel: Natural Gas
Waste: Public Sanitary
Watersource: Public Water
Fireplace Description: FamRoom Fireplace
Basement: Yes
Basement Description: Full, Walk Out
Foundation : Basement
Appliances: Dishwasher, Disposal, Microwave, Range/Oven
Cooling: Central A/C
Heating: Forced Air
Fuel: Natural Gas
Waste: Public Sanitary
Watersource: Public Water
Tax, Fees & Legal
Est. Summer Taxes: $466
Est. Winter Taxes: $359
Est. Winter Taxes: $359
HOA fees: 1200
HOA fees Period: Yearly
HOA fees Period: Yearly
Map

Information provided by East Central Association of REALTORS® Copyright 2026
All information provided is deemed reliable but is not guaranteed and should be independently verified. Participants are required to indicate on their websites that the information being provided is for consumers' personal, non-commercial use and may not be used for any purpose other than to identify prospective properties consumers may be interested in purchasing. Listing By: Barbara Gates of MJC Real Estate Co Inc., Phone: 586-263-1203
810-252-9467
Call Cathie Plummer for more information about this property.
Ask me about this property
|
Listings Presented by:
Cathie Plummer
Call:
810-252-9467 Office: 810-579-3333 |
This Single-Family Home located at
is currently pending. This property is listed for $899,356.
55358 bay oaks
has 4 bedrooms, approximately 3,148 square feet.
This home is in the utica community schools school district and has a lot size of 60x130x39x157x145 with 0.39 acres and was built in 2025.
55358 bay oaks is in shelby twp and in ZIP Code 48315 area.
55358 bay oaks, shelby twp MI, 48315
For Sale | $899,356
| 4 Bed, 4 Bath | 3,148 Sq Ft
MLS ID mrsmi50189332
If you have any question about this property or any others, please don't hesitate to contact me.





